Rodinný dům 3+1 se zahradou, uzavřeným dvorem – Bednáreček
Rodinný dům 3+1 se zahradou, uzavřeným dvorem – Bednáreček
Hledáte místo, kde si odpočinete od ruchu města a přitom budete mít
vše potřebné v dosahu?
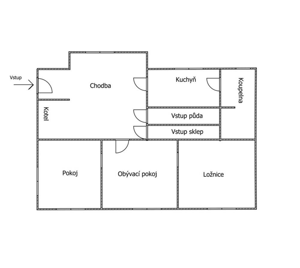
V klidné obci Bednáreček nabízím přízemní rodinný dům
3+1 s užitnou plochou cca 95 m² a pozemkem o velikosti 300 m².
Součástí je uzavřený dvůr zajišťující soukromí, kůlna na dřevo či
zahradní vybavení a možnost půdní vestavby dalších pokojů.
Dům je ihned volný, průběžně vyklízený a vhodný k bydlení
i úpravám současně.
„Dům, který si doladíte podle sebe – a přitom začít můžete
hned.“
V inzerci najdete nejprve reálné fotografie a poté i vizualizace, jak by
mohl dům vypadat po úpravě.
Technické informace:
- Vytápění: kotel na tuhá paliva
- Voda a kanalizace: obecní
- Vhodný k trvalému bydlení i rekreaci
- Možnost vyřízení hypotéky – ráda pomohu
Občanská vybavenost:
- Přímo v obci: prodejna COOP
- Popelín (2 km): škola, školka
- Strmilov (6 km): obchody, pošta, lékař
- Jindřichův Hradec (15–20 min): veškeré služby a zázemí
Volný čas a okolí:
- Klidná příroda, lesy, cyklostezky
- Vodní nádrž Komorník – koupání, rybaření, relax
- Přírodní park Česká Kanada – výlety a krásná krajina
- Zahrádka ideální pro pěstování nebo klidné posezení
Zaujala vás tahle nemovitost?
Zavolejte nebo napište – jsem tu pro vás i o víkendu.
Ráda vás domem osobně provedu a vše s vámi proberu v klidu a
s citem.



























