Rodinný dům 2+1 se zahradou a dvorem v centru Dačic
Rodinný dům 2+1 se zahradou a dvorem v centru Dačic
Hledáte bydlení v centru města, ale přitom s kouskem soukromí?
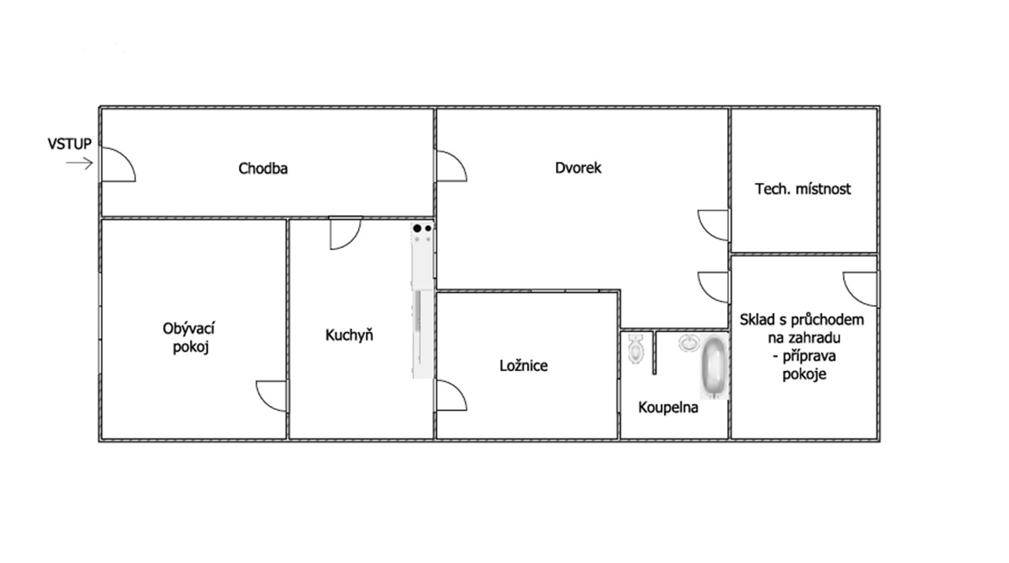
V samotném srdci Dačic nabízím řadový rodinný dům o dispozici
2+1 s možností rozšíření o další místnosti – jedna z nich už je
dokonce částečně připravena.
Užitná plocha domu je 98 m², celková výměra pozemku činí 349 m².
Nemovitost je napojená na obecní vodovod i kanalizaci. Vytápění
zajišťují nové úsporné plynové karmy. Dům prošel částečnou
rekonstrukcí a je ihned obyvatelný, ale zároveň nabízí prostor pro úpravy
podle vašich představ.
Součástí nabídky je i vizualizace interiéru, která vám pomůže lépe si
představit budoucí podobu jednotlivých místností a celkový potenciál
domu.
Za zmínku stojí uzavřený dvůr, který poskytuje klid a soukromí. Navazuje
na něj zahrada – ideální pro relax, děti, domácí mazlíčky nebo
menší zahrádku.
Dům se nachází v samotném centru Dačic, odkud máte všechno důležité
v docházkové vzdálenosti:
- škola a školka
- obchody, kavárny, restaurace
- lékárna a pošta
- autobusové nádraží
- městský úřad
- zdravotní středisko
- kulturní dům a zámek Dačice
- městský park a sportoviště
Město nabízí vše, co potřebujete pro pohodlný každodenní život
i volný čas.
S financováním vám ráda pomohu – spolupracuji s ověřeným
hypotečním specialistou, který vám zdarma spočítá možnosti a pomůže
vybrat nejvýhodnější variantu.
Nezáleží, jestli už hypotéku řešíte, nebo teprve zvažujete, co si
můžete dovolit – začít se dá vždy bezpečně a s přehledem.
Pro koho je nemovitost ideální?
- mladý pár, který hledá vlastní bydlení
- seniory, kteří ocení centrum města a klidný dvorek
- investiční příležitost k pronájmu
Máte zájem nebo jen otázku?
Neváhejte mě kontaktovat – klidně i o víkendu.
Ráda si najdu čas a vše vám vysvětlím osobně.
Hradecká 15

































